- Woonoppervlakte
- Circa 112 m²
- Perceeloppervlakte
- Circa 250 m²
- Bouwjaar
- Gebouwd in 1969
- Aantal kamers
- 4 kamers (3 slaapkamers)
de woning ligt zeer gunstig, op korte afstand van winkelcentrum "wielewaal" en "de nije nering". maar ook het centrum met al haar voorzieningen, als winkels, horeca en het ns-station zijn goed bereikbaar, net als de uitvalswegen a28 en a37. daarnaast zijn in hoogeveen verschillende scholen en tal van sportvoorzieningen aanwezig.
begane grond
entree/hal met meterkast, toilet, vaste kast en trapopgang. ruime woonkamer (ca. 31 m²) met veel lichtinval en open haard, aansluitend de keuken (ca. 7 m²) voorzien van 4 pits gaskookplaat, afzuigkap, koelkast en combi-magnetron. de bijkeuken is voorzien van een vaste kastenwand met ruimte voor wasmachine en droger. vanuit de bijkeuken is zowel de beschutte achtertuin als de groene zijtuin bereikbaar, waar het in het vroege voorjaar al heerlijk vertoeven is onder de overkapping. vanuit de achtertuin direct toegang tot de garage. zowel de begane grond als de eerste verdieping is geheel voorzien van kunststof kozijnen.
eerste verdieping
overloop met toegang tot drie slaapkamers (ca. 13 m², 9 m² en 6 m²), waarvan één met vaste kast, en de badkamer (vernieuwd in 2018) voorzien van douche, wastafelmeubel, designradiator en tweede toilet.
tweede verdieping
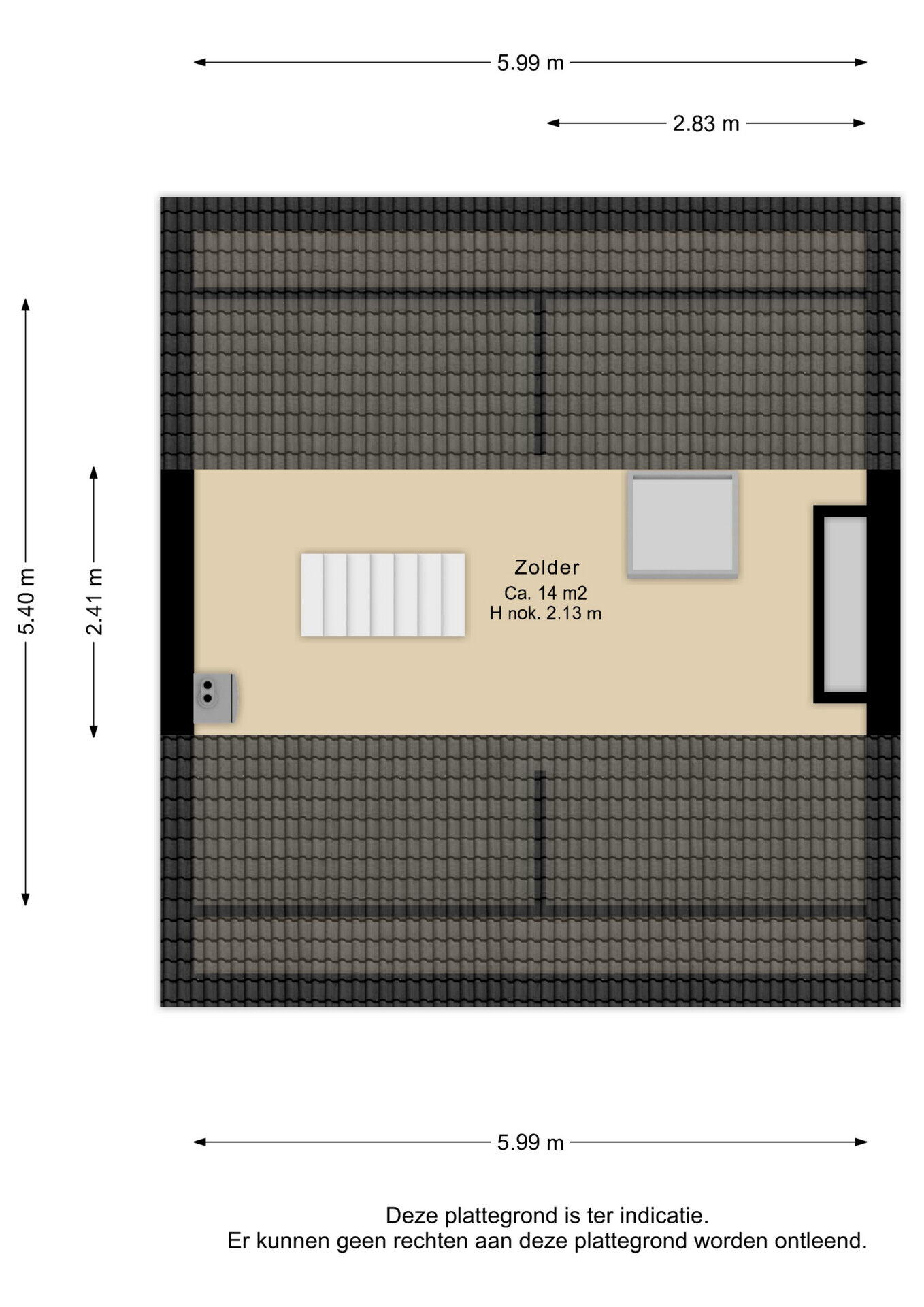
via een vaste trap bereikbare bergzolder (ca. 14 m²) met de mogelijkheid voor het creëren van een vierde slaapkamer. deze zolder is nu niet meegeteld als woonruimte, door het plaatsten van een groter dakraam telt deze in zijn geheel mee. het woonoppervlak gaat dan van 98 m² naar 112 m².
tuin:
de besloten achtertuin is gelegen op het zuidwesten en is bereikbaar vanuit de bijkeuken en geeft doorgang naar de garage (ca. 18 m²). de zijtuin is fraai aangelegd en onderhouden en beschikt over een royale overkapping (ca. 31 m²) met vrij uitzicht aan de voorzijde.
sterke punten & bijzonderheden
- voorzien van moderne badkamer;
- mogelijkheid voor een vierde slaapkamer;
- met eigen garage en oprit met carport;
- centraal gelegen, nabij voorzieningen en diverse toegangswegen;
- zonnige tuin met royale overkapping, volop privacy en achterom;
- een ruime, ideale gezinswoning!
Overdracht
- Vraagprijs
- € 369.500 k.k.
- Status
- Verkocht
- Aanvaarding
- In overleg
Bouw
- Object type
- Eengezinswoning, 2 onder 1 kapwoning
- Soort bouw
- Bestaande bouw
- Bouwjaar
- 1969
- Soort dak
- Zadeldak bedekt met pannen
Oppervlakte en inhoud
- Woonoppervlakte
- 112 m²
- Perceeloppervlakte
- 250 m²
- Inhoud
- 409 m³
- Externe bergruimte
- 18 m²
- Gebouwgeb. buitenruimte
- 31 m²
Indeling
- Aantal kamers
- 4 kamers (3 slaapkamers)
- Aantal badkamers
- 1 badkamer
- Badkamervoorzieningen
- Toilet, douche, wastafel, wastafelmeubel
- Aantal woonlagen
- 3 woonlagen
- Voorzieningen
- Tv-kabel, dakraam, glasvezel kabel, natuurlijke ventilatie
Energie
- Energielabel
- C
- Energielabel registratie
- 12-09-2017
- Isolatie
- Dakisolatie, muurisolatie, hr glas
- Verwarming
- Cv-ketel, open haard
- Warm water
- Cv-ketel
- Cv ketel
- Intergas combiketel gas gestookt uit 2016 (eigendom)
Buitenruimte
- Ligging
- Aan park, aan rustige weg, in woonwijk, vrij uitzicht
- Tuin
- Achtertuin, voortuin, zijtuin
- ligging tuin
- Gelegen op het zuidwesten
Bergruimte
- Schuur / berging
- Inpandig
- Voorzieningen
- Voorzien van elektra
Garage
- Soort garage
- Aangebouwd steen
- Capaciteit
- 1 auto
- Voorzieningen
- Elektra
- Isolatie
- Geen isolatie
Parkeergelegenheid
- Soort parkeergelegenheid
- Openbaar parkeren, op eigen terrein
Energieverbruik in Hoogeveen
Energielabel deze woning
Energielabel C
Publicatie energielabel: 12-09-2017
Stroomverbruik per jaar
(Gemiddelde twee onder een kap in Hoogeveen)
Gasverbruik per jaar
(Gemiddelde twee onder een kap in Hoogeveen)
* Cijfers zijn afkomstig van het CBS en bedoeld als indicatie en kunnen verschillen voor deze woning
Indicatie hypotheeklasten
Eigen inleg:
Spaargeld / overwaarde
Rente:
Laagste 10-jaars rente
Laagste 10-jaars rente
2,76% - Centraal Beheer Groen... - NHG
2,98% - Centraal Beheer Groen... - 80%
Laagste 20-jaars rente
3,19% - Centraal Beheer Groen... - NHG
3,31% - Centraal Beheer Groen... - 80%
Laagste 30-jaars rente
3,34% - Centraal Beheer Groen... - NHG
3,47% - Centraal Beheer Groen... - 80%
Hypotheek:
Bruto maandlasten: € 0 p/m
Netto maandlasten: € 0 p/m
Hoe berekenen we dit?
Het rentepercentage is gebaseerd op de laagste 10-jaars vaste rente voor één hypotheekdeel. De vermelde rente (2.76% met NHG) is gecontroleerd op 05-08-2025. Deze berekening is gebaseerd op een annuïteitenhypotheek die volledig wordt afgelost, waarbij de maandlasten gedurende de gehele looptijd gelijk blijven. De werkelijke rente en netto maandlasten kunnen variëren, afhankelijk van uw persoonlijke situatie en de hypotheekverstrekker. Raadpleeg een financieel adviseur voor een nauwkeurige berekening en advies. Aan deze berekening kunnen geen rechten worden ontleend; het dient enkel als indicatie.
Documentatie
Kadastrale kaart
Leefomgeving
Plattegrond perceel
Lijst van Zaken
Vragenlijst-B
Plattegronden PDF
BAG uittreksel
WOZ waarderapport
Brochure
Montbretiastraat 2 Hoogeveen
Bezoek onze website
Bezichtiging
Bod uitbrengen
Waardebepaling
Zoekopdracht
Alles downloaden
Zonnegrenzen bekijken
Op de kaart
Inwoners in Hoogeveen
Cijfers voor postcodegebied 7906
- Totaal aantal inwoners
- 6230 inwoners
- Mannen
- 50%
- Vrouwen
- 50%
Inwoners in Hoogeveen
Cijfers voor postcodegebied 7906
- tot 15 jaar
- 14%
- 15 tot 25 jaar
- 12%
- 25 tot 35 jaar
- 26%
- 45 tot 65 jaar
- 26%
- 65 en ouder
- 22%
Huishoudens in Hoogeveen
Cijfers voor postcodegebied 7906
- Eenpersoons zonder kinderen
- 45%
- Meerpersoons zonder kinderen
- 27%
- Huishoudens zonder kinderen
- 72%
Huishoudens in Hoogeveen
Cijfers voor postcodegebied 7906
- Huishoudens met één kind
- 8%
- Huishoudens met meerdere kinderen
- 20%
- Huishoudens met kinderen
- 28%
Woningen in Hoogeveen
Cijfers voor postcodegebied 7906
- Woningen voor 1945
- 2%
- Woningen tussen 1945 en 1965
- 41%
- Woningen tussen 1965 en 1975
- 26%
- Woningen tussen 1975 en 1985
- 5%
- Woningen tussen 1985 en 1995
- 7%
Woningen in Hoogeveen
Cijfers voor postcodegebied 7906
- Woningen tussen 1995 en 2005
- 13%
- Woningen tussen 2005 en 2015
- 3%
- Woningen na 2015
- 1%
- Huurwoningen
- 50%
- Koopwoningen
- 50%
Overige in Hoogeveen
Cijfers voor postcodegebied 7906
- Gemiddelde WOZ waarde
- € 142.000,-
- Personen onder de 65 met uitkering
- 12%
Overige in Hoogeveen
Cijfers voor postcodegebied 7906
- Adressen per km²
- 2062
- Stedelijkheid (schaal 1 op 5)
- 80%


Groenhout Makelaars
Indien u vragen heeft of u wilt een bezichtiging inplannen, dan kunt u gebruik maken van het formulier hiernaast. Er zal daarna op korte termijn contact met u worden opgenomen.
Hollandscheveldse Opgaande 19
7913 VA, Hollandscheveld
0528 82 09 90 hoogeveen@groenhoutmakelaars.nl www.groenhoutmakelaars.nlContact opnemen
Dé makelaar in Hoogeveen
Als NVM Makelaar staan wij graag in Hoogeveen en omgeving voor u klaar. Groenhout Makelaars Hoogeveen bemiddelt bij de verkoop en aankoop van woningen, hierbij zijn wij zowel binnen als buiten Hoogeveen actief.
Ook voor taxaties in omgeving Hoogeveen kunt u contact met ons opnemen. Een echte ondernemer, zonder 9 tot 5 mentaliteit, waarbij persoonlijk contact en nauwe betrokkenheid belangrijk zijn.

Nieuwste reviews
-
Smele 5
Heel goed en medelevend. Goed contact met de makelaar. Heeft me veel werk en gepieker uit handen genomen
-
Ommerweg 6
Krista heeft ons erg goed en deskundig geholpen bij de aan- en verkoop van onze woning. De communicatie verliep heel soepel en direct wat wi...
-
Hagenakkers 23
Je hoopt natuurlijk als verkopende partij dat je een makelaar treft die in staat is om je van begin tot het eind te begeleiden bij de verkoo...